Skip navigation
home
contact
Skip navigation
home
About Us
About Us
founder & director
Barrie Ho MH
directors
Angie Pi
Maggie Mak
Debbie Law
Kobe Cheng
Mandy Chan
design philosophy
international collaboration
corporate events
20+
18+
15+
12+
10+
5+
exhibitions
Anniversary
10+
15+ (Part 2)
15+ (Part 1)
18+
20+ Venice
20+ Korea
International 2012 –2018
RIBA 2017
Archmarathon
Milano 2014
Milano 2013
Milano 2012
International 2018 –present
Venice 2018
Asia
TID Award
Qianhai
HK-SZ Biennale
Mr. Chair-Man
Spaces & Places
Arch Biennale
publications
contact
Architecture
architecture
recently completed projects
The Accelerator Block,
Extension (Phase 2) of Qianhai Creative Entrepreneur-Hub
@ QianHai, Shenzhen, PRC
(Part 1)
The Incubation Block,
Extension (Phase 2) of QianHai Creative Entrepreneur-Hub
@ QianHai, Shenzhen, PRC
(Part 2)
Extension (Phase 2) of QianHai Creative Entrepreneur-Hub
@ QianHai, Shenzhen, PRC
(Part 3)
ChongQing China-US Collaborative
Inno-Accelerator cum
Academy for Xiantao Big Data Valley
@ChongQing, PRC
(Part 1)
ChongQing China-US Collaborative
Inno-Accelerator cum
Academy for Xiantao Big Data Valley
@ChongQing, PRC
(Part 2)
Qian Hai Creative Youth Entrepreneurship
Dream Factory
@ Qian Hai, Shenzhen, PRC (Part 1)
Qian Hai Creative Youth EntrepreneurshipDream Factory@ Qian Hai, Shenzhen, PRC (Part 2)
Qian Hai Creative Youth EntrepreneurshipDream Factory@ Qian Hai, Shenzhen, PRC (Part 3)
Integrated E-Sports Stadium +
Incubation + Training + Hotel Development
@ Zhongxian, Chongqing, PRC (Part 1)
Integrated E-Sports Stadium +
Incubation + Training + Hotel Development
@ Zhongxian, Chongqing, PRC (Part 2)
Conference Lodge@ HK University of Science & Technology
Wholesale Conversion of Industrial Buildinginto Genesis@ Wong Chuk Hang, Island South
Boat House
@ HK University of Science & Technology
F&B Concourse
@ HK University of Science & Technology
ATL Logistics Centre
@ Kwai Chung, Hong Kong
Metroplaza
@ Kwai Fong, Hong Kong
Wind Tunnel Codes for Wong Check She Research Centre
@ HK University of Science & Technology
Remodeling of Wai Hang Sports Centre
@ Hong Kong Baptist University
Grandstand, Joint Sport Centre
@ Hong Kong Baptist University
The Woods
@ Clear Waterbay Road, Sai Kung
New Iconic Skynet at South Campus
@ HK University of Science & Technology
Major Alteration & Addition Works for
Plaza 2000
@ Russell Street, Causeway Bay
Wan Chai Sports Federation
@ Moreton Terrace, Causeway Bay
Major Alteration & Addition Works for
New Student Life Centre
@ HK University of Science & Technology
Major Alteration & Addition Works for
Library of
The HK Academy for Performing Arts
@ Wanchai (Section 1)
upcoming new projects
Qian Wan Data Centre
@ QianHai
3 Cubes@ 73 Ellery Parade, Seaforth,Sydney NSW, Australia(Part 1)
3 Cubes@ 73 Ellery Parade, Seaforth,Sydney NSW, Australia(Part 2)
3 Cubes@ 73 Ellery Parade, Seaforth,Sydney NSW, Australia(Part 3)
3 Cubes@ 73 Ellery Parade, Seaforth,Sydney NSW, Australia(Part 4)
BHA Sydney + Community Gallery@ 25 Weston Street, Dulwich Hill,Sydney NSW, Australia
Remodeling of Li Promenade on Shaw Campus@ Hong Kong Baptist University
Black & White Tubes Experiments,
Propsed Residential Development
@ Sham Tseng
Major Alteration & Additional Works
of Sear Rogers International School
@ Tsuen Wan
Integrated Community Development
(Elderly + Youth) Yan Oi Tong
@ Tuen Mun
Proposed Columbarium & Conservation &
Restoration of Pun Uk
@ Au Tau, Yuen Long
New Headquarter of
Society for the Prevention of
Cruelty to Animals (SPCA)
@ Tsing Yi
S.K.H. St. Christopher's Home
Youth Hostel
@Tai Po Road, Tai Po
institution & community facility
Hong Kong Federation of Women
T.S. Kwok Service Centre
@ Lockhart Road, Wanchai
Skynet for Logo Square
+ Courtyard Cafe
@ Hong Kong Polytechnic University
Transformation of an abandoned School into
Headquarter of HKCAAVQ
@ Siu Sai Wan
Transformation of an abandoned School into
Headquarter of Employees' Retaining Board
@ Chai Wan
Silver 100 Innovative Exhibition Centre
@ Nanhai, PRC
Museum for Contemporary Living
@ Huizhou PRC
Island Golf Club
@ Tseung Kwan O
City Art Square
@ Shatin
Communal Park for IVE Shatin
@ Shatin
Hong Kong Federation of Youth Groups
Organic Farm
@ Yuen Long
The Proposed Grand Auditorium
@ HK University of Science & Technology
The Tilting Tubes [2.86° pavilion]
for Western Kowloon Cultural District
@ Western Kowloon
Proposed Chinese Rhenish Church
@ Yuen Long
Proposed Columbarium
@ Lantau North
Proposed High-rise Columbarium
@ Tsuen Wan
Proposed Grand Columbarium for HKSAR
@ Lantau Island
Conceptual Design for Wu Yee Sun College
@ The Chinese University of Hong Kong
New Teaching Block
@ St. Stephen's College, Stanley
Contemporary Courtyard House
@ Nanhai, PRC
Student Dormitory
@ St. Stephen's College, Stanley
research study
A Research Study
on Accommodation Requirements
for Kindergartens in Hong Kong
for Education Bureau,
Hong Kong Special Administrative Region
(BHA in collaboration with CPW, HKU)
conservation & restoration
Urban Cocoon (Stage 1) for
Central Oasis, Central Market
@ Central
Urban Cocoon (Stage 2) for
Central Oasis, Central Market
@ Central
(in collaboration with OMA)
Transformation of abandoned Factories into
Creative Socio-Cultural Centre
@ Shunde, PRC
Transformation of 2 existing Bungalons
Into Visitors' Centre + Museum for
St. Stephen's College
@Stanley
(AMO Grade I Historical Building)
S.K.H. Ming Hua Theological College
@ Glenealy, Central
(AMO Grade I Historical Building)
St. Paul's Church
@ Glenealy, Central
(AMO Grade I Historical Building)
Hong Kong Design Centre
@ 28 Kennedy Road, Central
(AMO Grade I Historical Building)
Revitalisation of Lai Chi Kok Hospital
@ Lai Chi Kok
(AMO Grade III Historical Building)
shopping mall
iCube
@ Zhuhai, PRC
iCube Mall Annex
@ Zhuhai, PRC
Home Square
@ Shatin
Cantonyama
@ Canton Road, Tsim Sha Tsui
Island Resort Mall
@ Island East
Katherine House
@ Tsim Sha Tsui
Chow Tai Fook Flagship Store
@ Guangzhou, PRC
corporate
Alteration & Addition Works for
Emperor Group Centre
@ Wanchai
Pylon Tower
@ Tsuen Wan
Major Alteration & Addition Works for
Plaza 2000
@ Russell Street, Causeway Bay
hotel & serviced apartment
The Mercer, Boutique Hotel
@ Mercer Street, Sheung Wan
Zebrano, Boutique Apartment
@ Lion Rock Road, Kowloon City
Urban Retreat Palm Island Golf Resort
@ Huizhou, PRC
master planning
Kunming World Trade Centre
@ Kunming, PRC
Mixed-Use Development & Masterplanning
@ Zhaoqing City, PRC
Master Layout Plan for
Composite Residential Development
@ Dongguan, PRC
Master Layout Plan for Aqua-Habitat
@ Shenzhen PRC
residence
Residential Redevelopment
@ Moorsom Drive Jardine's Lookout
Residential Development
@Silver Terrace Road, Clear Water Bay
Private Residence
@ No. 10 Calcada das Chacaras, Macau
Private Residence
@ Fei Ngo Shan
High-Rise Residential Development
@ Dongguan, PRC
Resort Residence, Palm Island Golf Resort
@ Huizhou, PRC
Design
interior
interior
recently completed projects
Tatooine for Stars Wars Collections@ Genesis
Crit Room for Italian Cuisine
Techno-Library
@ Shanghai Alumni Primary School
Leisure Depot
@ Hong Kong Baptist University
Po Leung Kuk Lee Shu Fook Kindergarten
@ Shun On Estate, Kwun Tong
Chaplain's Office
@ Hong Kong Baptist University
Generation’s Youth Centre@ Hung Shui Kiu
Integrative Systems & Design Studio@ HK University of Science & Technology
Hong Kong Jockey Club Telebet Centre
@ Shatin Racecourse (Level 2)
Hong Kong Jockey Club Telebet Centre
@ Shatin Racecourse (Level 3)
Hong Kong Jockey Club Telebet Centre
@ Shatin Racecourse (Level 4)
Hong Kong Jockey Club Telebet Cente
@ Shatin Racecourse
(Day Shift Activites)
Hong Kong Jockey Club Telebet Cente
@ Shatin Racecourse
(Night Shift Activites)
Postgraduate Student Lounge for
School of Engineering
@ HK University of Science & Technology
Major Renovation of LG1 and 1 Level for
Lee Shau Kee Library
@ HK University of Science & Technology
upcoming new projects
Residence Clubhouse for MELISSA Residential Development@
Haikou, Hainan Island, PRC
institution & community facility
Kai Tak Cruise Terminal Building
@ Kai Tak, Kowloon East
Transformation of a Carpark into
HK Federation of Youth Groups
Jockey Club M21
@ Shek Pai Wan Estate (Part 1)
Transformation of a Carpark into
HK Federation of Youth Groups
Jockey Club M21
@ Shek Pai Wan Estate (Part 2)
Contemporary Food Agora
@ HK University of Science & Technology
(Part 1)
Contemporary Food Agora
@ HK University of Science & Technology
(Part 2)
HK Chiu Chow Chamber of Commerce
Ko Pui Shuen Gallery
Lee Shau Kee Library
@ HK University of Science & Technology
Transformation of a Cinema into
Lifestyle ShowSuite for
Contemporary living for
Hong Kong Housing Society
@ Sham Shui Po
Transformation of an existing Carpark into
Hong Kong Jockey Club Telebet Centre
@ Tin Shui Wai
Youth S.P.O.T. for
Hong Kong Federation of Youth Groups
@ Hang Fa Chuen
Utilization of Corridors for
Youth Art Space for Free Methodist Church
@ Tuen Mun
Hong Kong Jockey Club Cadenza Senior Hub
@ Tai Po
Youth S.P.O.T. for
Hong Kong Federation of Youth Groups
@ Tin Shui Wai
Youth S.P.O.T. for
Hong Kong Federation of Youth Groups
@ Tuen Mun
Youth S.P.O.T. for
Hong Kong Federation of Youth Groups
@ Verbena Heights
Youth S.P.O.T. for
Hong Kong Federation of Youth Groups
@ Farm Road
Hong Kong Federation of
Youth Groups Jockey Club LEAD
@ Cyberport
Headquarter of
Hong Kong Federation of Youth Groups
@ North Point
Major Alteration & Addition Works for
Sir Run Run Shaw Hall
@ The Chinese University of Hong Kong
Museum for Contemporary Living
@ Huizhou PRC
IVE Fashion Centre @ Kwai Chung
IVE Image Centre
@ Kwai Chung
IVE Fashion & Image Gallery
@ Kwai Chung
IVE Business Centre
@ Shatin
Toy Design Centre
@ Tsing Yi
E-Dance Studio
@ Causeway Bay
hotel
The Mercer, Boutique Hotel
@ Mercer Street, Sheung Wan
Cosmo Kowloon Hotel
@ 88 Tai Kok Tsui Road
Urban Retreat for Palm Island Golf Resort
@ Huizhou, PRC
exhibition
15 for 15+ Architecture Exhibition
@ HK Fringe Club
(Part 1)
15 for 15+ Architecture Exhibition
@ HK Fringe Club
(Part 2)
Unfolding Black & White
Architecture Exhibition
@ SuperStudio, Tortona, Milano Fuorisalone 2014
Milano, Italy
"The Cube"
@Spazio FMG, Milano Fuorisalone 2013,
Milano, Italy
Hyperdensity Architecture in Asia
@ Milano Fuorisalone 2012
Milano, Italy
10+ Architecture Exhibition
@Cattles' Depot Artists' Village, To Kwa Wan
Palimpsest of Living Habitate
Hong Kong Shenzhen Biennale of
Architecture & Urbanism
@ Former Hong Kong Police Station, Central
Spaces and Places @ Hong Kong Heritage Museum, Shatin
World Boutique 2003
@Hong Kong Convention & Exhibition Centre
Wanchai
clubhouse
Clubhouse + Sales Complex for
MELISSA Residential Development
@Haikou, Hainan Island, PRC
Club de Canary
@ Lei Yue Mun
Clubhouse for Scenic Horizon
@ Shau Kei Wan
Clubhouse for Yishan Garden
@ Shenzhen, PRC
Clubhouse
@ Nam Van Lake, Macau
residence
Mosaic Chic Apartment
@Haikou, Hainan Island, PRC
Major Renovation of the Lobby for
Peach Blossom
@ Mid-levels
Luxurious Apartment
@ Hatton Road, Mid-levels
Zen House
@ Mission Hills
Manhattan Chic
@ Pearl City 2, Zhuhai, PRC
Green Apartment
@ Jardine's Lookout
Roppongi Chic
@ Pearl City 2, Zhuhai, PRC
West End London Chic
@ Pearl City 2, Zhuhai, PRC
Manhattan Dweller
@ Pearl City 1, Zhuhai, PRC
Walnut Boutique
@ Pearl City 1, Zhuhai, PRC
Domus Armani
@ Huizhou, PRC
Ming Casa
@ Huizhou, PRC
Stripes Apartment
@ Guangzhou, PRC
Apartment A
@ Yishan Garden, Shenzhen, PRC
Apartment B
@ Yishan Garden, Shenzhen, PRC
House 18
@ Yishan Garden, Shenzhen, PRC
Resort Residence
@ Palm Island Golf Resort, Huizhou, PRC
retail
Reves Des Fleurs
@ Shenzhen, PRC
OZZO
@ Shenzhen, PRC
G.E.T.
@ Shenzhen, PRC
Barrie Ho Collections
@ Happy Valley
Barrie Ho Collections
@ Lan Kwai Fong
Zen for Asianism
@ Lan Kwai Fong
theme park
Retail Outlets
@ Ngong Ping 360, Lantau Island
Retail Outlets
@ Polar Adventure + Thrill Mountain
Ocean Park
furniture
furniture
ming collection
zen collection
enquiry
crossover
crossover
"Yellow Twist" for Design Commune
x Colourliving x Arrakis Oggetti 2015
"Dragon in Action" for HKTDC
in Toronto and Chiacago 2015
Maxfine, IrisFMG Ceramica
Lamborghini HK x The Link x CowParade
STRIDA
Smart Car
RADO
Vidal Sassoon
LG
SAMSUNG
Conqueror
LALIQUE
Frey Wille
Keramag
Jewellery with clf-2
Jade Collection
Jewellery with clf-2
Hans Christian Andersen Collection
Watches with clf-2
Awards
architectural
architectural
collective review
A&D Awards 2022Bronze AwardBest Residential – Single Home, Architecture Category
The Cube @Beachside, Sans Souci, Sydney NSW, Australia
A&D Awards 2022Bronze AwardBest Education, Architecture Category
Remodeling of Li Promenade@ Hong Kong Baptist University, Hong Kong
Luxury Lifestyle Award 2022Nest Luxury Mixed Used ArchitectureThe Acceleration Block, Extension (Phase 2)
of Qian Hai Creative Entrepreneur - Hub @ QianHai, Shenzhen, PRC
HKDA Global Design Awards 2021Excellence AwardRestaurant, Spatial Category
Leisure Depot@ Hong Kong Baptist University
HKDA Global Design Awards 2021Excellence AwardRestaurant, Spatial Category
Crit Room for Italian Cuisine@Sheung Wan, Hong Kong
HKDA Global Design Awards 2021Excellence AwardOffice, Spatial Category
Extension (Phase 2) of Qian HaiCreative Entrepreneur - Hub@ QianHai, Shenzhen, PRC
HKDA Global Design Awards 2021Excellence AwardOffice, Spatial Category
The Acceleration Block, Extension (Phase 2) of Qian Hai Creative Entrepreneur - Hub@ QianHai, Shenzhen, PRC
HKDA Global Design Awards 2021Excellence AwardOffice, Spatial Category
The Incubation Block, Extension (Phase 2)of Qian Hai Creative Entrepreneur - Hub@ QianHai, Shenzhen, PRC
A&D Awards 2021Silver AwardFuture Development, Architecture Category
BHA Sydney, Office and Community Gallery@Sydney NSW, Australia
A&D Awards 2021Certificate of Excellence Best Education, Architecture Category
The Incubation Block, Extension (Phase 2)of Qian Hai Creative Entrepreneur - Hub@ QianHai, Shenzhen, PRC
THE SOURCE DESIGN AWARDS 2020Architecture CategoryIntegrated E-Sports Stadium
@ Zhongxian, ChonqQing, PRC
THE SOURCE DESIGN AWARDS2020Architecture Category
Integrated E-Sports Stadium@ Zhongxian, ChonqQing, PRC
France Place Marketing Forum 2019 AwardThe Great Project
Integrated E-Sports Stadium@ Zhongxian, ChonqQing, PRC
2019-2020 Asia Pacific Property AwardsHighly Commended AwardPublic Service Interior Category
Hong Kong Jockey ClubTelebet Centre @ Shatin, Hong Kong
2019-2020 Asia Pacific Property AwardsHighly Commended AwardPublic Service Interior Category
Hong Kong Federation of YouthYouth Centre @ Hung ShuiKiu, TuenMun, HK
2018 A&D Trophy Award Certificate of ExcellentProfessional Best Institution, Interior Design
New Generation of Youth Centre@Hung Shui Kiu
2017A&D Trophy AwardsCertificate of Excellent –Residential, Architecture (Professional)
The Woods@ Clear Water Road, Sai Kung
2017-18 Asia Pacific Property AwardsHighly Commended Award
Public Service Architecture CategoryConference Lodge@ Hong Kong University of Science and Technology
2017-18 Asia Pacific Property AwardsHighly Commended AwardRetail Architecture Category
Plaza 2000@ Causeway Bay
2017-18 Asia Pacific Property AwardsBest Public Service Architecture AwardPublic Service Architecture Category
Conference Lodge@ Hong Kong University of Science and Technology
2017-2018 HKIA Cross-Strait Architectural Design AwardsNominated AwardResidential Category
The Woods@ Clear Water Road, Sai Kung
2017-2018 HKIA Cross-Strait Architectural Design AwardsNominated AwardArchitecture for Social Innovation Category
Conference Lodge@ Hong Kong University of Science and Technology
2017-2018 HKIA Cross-Strait Architectural Design AwardsNominated AwardArchitecture for Social Innovation Category
Wholesale Conversion of Industrial Buildinginto Genesis@ Wong Chuk Hang, Island South
2017-2018 HKIA Cross-StraitArchitectural Design AwardsNominated AwardArchitecture for Social Innovation Category
Wan Chai Sports Federation@ Moreton Terrace, Causeway Bay
2017-2018 HKIA Cross-Strait Architectural Design AwardsNominated AwardArchitecture for Social Innovation Category
Qian Hai Creative Youth EntrepreneurshipDream Factory@ Qian Hai, Shenzhen, PRC
2017-2018 HKIA Cross-Strait Architectural Design AwardsNominated AwardArchitecture for Social Innovation Category
Hong Kong Federation of WomenT.S. Kwok Service Centre@ Lockhart Road, Wanchai
2017-2018 HKIA Cross-Strait Architectural Design AwardsNominated AwardArchitecture for Social Innovation Category
Skynet for Logo Square+ Courtyard Café@ Hong Kong Polytechnic University
2017-2018 HKIA Cross-Strait Architectural Design AwardsNominated Award, Architecture for Social Innovation Category
HKFYG Jockey Club M21@ Shek Pai Wan Estate
2016 Perspective AwardsFinalist, Architecture Category
Wan Chai Sports Federation@ Moreton Terrace, Causeway Bay
2016 Perspective AwardsFinalist, Architecture Category
Plaza 2000@ Causeway Bay
2016 Perspective AwardsFinalist, Interior Design Category
HKJC Communication & Technology Centre Shatin Racecourse@ Shatin
2016 Perspective AwardsFinalist, Architecture Category
Conference Lodge @ Hong Kong University of Science and Technology
2016 Perspective AwardsFinalist, Architecture Category
Qian Hai Creative Youth Entrepreneurship Dream Factory@ Qian Hai, Shenzhen, PRC
2016 Perspective AwardsFinalist, Interior Design Category
Main Library@ Hong Kong Academy for Performing Arts
2016 Perspective AwardsFinalist, Interior Design Category
TATOOINE for Star Wars Collections @ Genesis, Wong Chuk Hang
2016 Perspective AwardsFinalist, Architecture Category
Wholesale Conversion of Industrial Building@ Wong Chuk Hang into GENESIS
2016 Perspective AwardsFinalist, Architecture Category
Hong Kong University of Science and Technology Skynet@ Hong Kong University of Science and Technology
2015-16 Asia Pacific Property Awards
Highly Commended Award
Public Service Architecture Category
Wholesale Conversion of Industrial Building
into Genesis
@ Wong Chuk Hang, Island South
2015-16 Asia Pacific Property Awards
Highly Commended Award
Public Service Architecture Category
Qian Hai Creative Youth Entrepreneurship
Dream Factory
@ Qian Hai, Shenzhen, PRC
2015-2016 HKIA Cross-Strait
Architectural Design Awards
Nominated Award
Architecture for Social Innovation Category
Wan Chai Sports Federation
@ Moreton Terrace, Causeway Bay
2015-2016 HKIA Cross-Strait
Architectural Design Awards
Nominated Award
Architecture for Social Innovation Category
Transformation of an Abandoned School into
New Headquarters of HKCAAVQ and ERB
@ Siu Sai Wan
2015-2016 HKIA Cross-Strait
Architectural Design Awards
Nominated Award
Architecture for Social Innovation Category
Transformation of a Carpark
into
HKFYG Jockey Club M21
@ Shek Pai Wan Estate
2015-2016 HKIA Cross-Strait
Architectural Design Awards
Nominated Award
Architecture for Social Innovation Category
Hong Kong Federation of Women
T.S. Kwok Service Centre
@ Lockhart Road, Wanchai
2015-2016 HKIA Cross-Strait
Architectural Design Awards
Nominated Award
Architecture for Social Innovation Category
Skynet for Logo Square
+ Courtyard Café
@ Hong Kong Polytechnic University
2015-2016 HKIA Cross-Strait
Architectural Design Awards
Nominated Award
Unbuilt Project:
Architectural Design Scheme Category
S.K.H. St. Christopher's Home
Youth Hostel
@ Tai Po Road, Tai Po
2015 China’s Successful Design Award
in Architectural Design
Qian Hai Creative Youth Entrepreneurship
Dream Factory
@ Qian Hai, Shenzhen, PRC
2014-15 Asia Pacific Property Awards
Highly Commended Award
Hotel Architecture Category
The Mercer, Boutique Hotel
@ Mercer Street, Hong Kong
2014 FuturArc Green Leadership Award
Merit – Institutional Architecture category
Transformation of an Abandoned Carpark into
HKFYG Jockey Club M21
@ Shek Pai Wan
2014 Taiwan TID Awards
Category of Space Furniture
The White Cube @ Milano Design Week 2013
Golden Pin Design Award 2014
Category of Interior Design
The White Cube @ Milan Design Week 2013
HKDA Global Design Awards 2013
Certificate of Excellence – Spatial Category
The Mercer, Boutique Hotel
@ Mercer Street, Hong Kong
2013 Good Design Selection, Korea
Award of Selection
Transformation of an Abandoned Carpark into
HKFYG Jockey Club M21
@ Shek Pai Wan
2013 Perspective Awards
Certificate of Excellence
Green or Sustainable Build, Architecture
(Professional)
Transformation of an Abandoned School into
the Headquarter of
Hong Kong Council for Accreditation of
Academic And Vocational Qualifications
@ Siu Sai Wan
2013 Perspective Awards
Certificate of Excellence
Institutional/ Public Space, Interior (Professional)
Transformation of an Abandoned Carpark into
HKFYG Jockey Club M21
@ Shek Pai Wan
2013 China's Successful Design Award
in Architectural Design
Shanghai, PRC
iCube
@ Zhuhai, PRC
2013 Outstanding Greater China Design Award
iCube
@ Zhuhai, PRC
2013 Outstanding Greater China Design Award
Contemporary Food Agora
@ HK University of Science and Technology
2013-14 Asia Pacific Property Awards
Highly Commended Award, Public Service Architecture Category
Transformation of an Abandoned Carpark into
HKFYG Jockey Club M21
@ Shek Pai Wan
2013 HKIA Cross-Strait Architectural Design Awards
Nominated Award, Hotel Category
The Mercer, Boutique Hotel
@ Mercer Street, Hong Kong
2012 Perspective Awards
Certificate of Excellence
Green or Sustainable Build, Architecture
(Professional)
Utilisation of
Leftover Space Underneath Flyover for
HKFW T.S. Kwok Service Centre
@ Lockhart Road, Wanchai
2012 China's Successful Design Award
in Architectural Design
Shanghai, PRC
Transformation of an existing Carpark into
HKFYG Jockey Club M21
@ Shek Pai Wan
"2012 China's Successful Design Award
in Architectural Design
Shanghai, PRC
Transformation of an Abandoned Cinema into
HEYA Lifestyle Show Suite for
Contemporary Living
@ Cheung Sha Wan
"2012 China's Successful Design Award
in Architectural Design
Shanghai, PRC
Transformation of
An Abandoned Primary School into
Hong Kong Council for Accreditation of
Academic And Vocational Qualifications
@ Siu Sai Wan
2012 Outstanding Greater China Design Award
The Skynet
@ Logo Square + Courtyard Café
The Hong Kong Polytechnic University
2012 Outstanding Greater China Design Award
Transformation of an Abandoned Carpark into
Creative New Media Centre for Youth
@ Shek Pai Wan
2012 FuturArc FuturArc Green Leadership Award
Merit - Interior Architecture Category
Transformation of Existing Carpark into
The Hong Kong Jockey Club Telebet Centre
@ Tin Shui Wai"
Hong Kong Best,
Spatial Category
2011 Hong Kong
Designer's Association Awards
The Skynet
@ Logo Square + Courtyard Cafe,
The HK Polytechnic University
Certificate of Excellence,
Spatial Catagory
2011 Hong Kong
Designer's Association Awards
The Skynet
@ Logo Square + Courtyard Cafe,
The HK Polytechnic University
2011 China's Most Successful
Designs Award
in Architectural Design,
Shanghai, PRC
CBI China
The Skynet
@ Logo Square + Courtyard Cafe,
The HK Polytechnic University
2011 China's Most Successful
Designs Award
in Architectural Design,
Shanghai, PRC
CBI China
Hong Kong Federation of Women
T.S. Kwok Service Centre
@ Lockhart Road, Hong Kong
2011 China's Most Successful
Designs Award
in Architectural Design,
Shanghai, PRC
CBI China
The Mercer, Boutique Hotel
@ Mercer Street, Hong Kong
2011 China's Most Successful
Designs Award
in Architectural Design,
Shanghai, PRC
CBI China
Zebrano, Boutique Apartment
@ Kowloon City, Kowloon
Outstanding Greater China
Design Awards 2011
Hong Kong Federation of Women
T.S. Kwok Service Centre
@ Lockhart Road, Hong Kong
Bronze,
Architecture (Renovation) Category
USA International Design
Awards 2010
Sir Run Run Shaw Hall
@ The Chinese University of HK
Bronze,
Architecture (Institutional) Category
USA International Design
Awards 2010
HKFYG Youth S.P.O.T.
@ Hang Fa Chuen
Silver,
Interior Design (Institutional) Category
USA International Design
Awards 2010
FMC Youth Centre @ Tuen Mun
Bronze,
Architecture (Institutional) Category
USA International Design
Awards 2010
The Hong Kong Jockey Club
Cadenza Senior Hub @ Tai Po
Certificate of Excellence
Heritage, Architecture (Professional)
Perspective Awards 2010
Restoration of
SKH Ming Hua Theological College
Certificate of Excellence
Landscaping, Architecture (Professional)
Perspective Awards 2010
ity Art Square @ Shatin
Certificate of Excellence
Green or Sustainable Build,
Interior Design (Professional)
Perspective Awards 2010
HKFYG Youth S.P.O.T.
@ Hang Fa Chuen
2010 China's Most Successful
Designs Award
CBI China
HKFYG Youth S.P.O.T
@ Hang Fa Chuen
2010 China's Most Successful
Designs Award
CBI China
Utilization of Corridors for
Youth Art Space for
Free Methodist Church
@ Tuen Mun
Outstanding Greater China
Design Awards 2010
Home Square @ Shatin
Merit
Special Awards,
Community Institutional
Facilities Category
Quality Building Awards 2010
City Art Square @ Shatin
Certificate of Finalist
Special Awards,
Community Institutional
Facilites Category
Quality Building Awards 2010
The Hong Kong Jockey Club
Telebet Centre @ Tin Shui Wai
2009 China's Most Successful
Designs Award
J Hotel @ Sheung Wan
Outstanding Greater China
Design Awards 2009
The Hong Kong Jockey Club
Telebet Centre @ Tin Shui Wai
Honorable Mention
Category of Institutional Space
Asia Pacific Interior Design
Awards 2009
Sir Run Run Shaw Hall
@ The Chinese University of HK
TID Gold Award
Category of Space Furniture
Taiwan Interior Design Awards 2009
The Red Box
Winner
Leisure Built Category
Dubai Cityscape Architectural
Awards 2008
City Art Square @ Shatin
Honorable Mention
Architecture (Landscape) Category
USA International Design Awards 2008
City Art Square @ Shatin
2nd Prize
Architecture (Landscape) Category
USA International Design
Awards 2008
Communal Park for Shatin IVE
2nd Prize
Interior Design (institutional) Category
USA International Design
Awards 2008
Youth S.P.O.T. at Verbena Heights
for HKFYG
2nd Prize
Interior Design (institutional) Category
USA International Design
Awards 2008
Youth S.P.O.T. Centre for HKFYG
Winner
Category of Interior Institutional Space
Perpective Awards 2008
Hong Kong Biennale of
Architecture & Urbanism
Gold Medal
Category of Residential
Asia Pacific Interior Design
Awards 2008
Architects' Apartment @ Hatton Road
Winner 25
2008 China's Most Successful
Designs Award
Fortune China Magazine
City Art Square @ Shatin
TID Gold Award
Category of Exhibition Spaces
Taiwan Interior Design Awards 2008
Hong Kong Biennale of
Architecture & Urbanism
TID Award
Category of Public Spaces
Taiwan Interior Design Awards 2008
City Art Square @ Shatin
TID Award
Category of EPublic Spaces
Taiwan Interior Design Awards 2008
Communal Park for Shatin IVE
TID Primary Selection
Category of Residential Spaces
Taiwan Interior Design Awards 2008
Architects' Apartment @ Hatton Road
TID Primary Selection
Category of Public Spaces
Taiwan Interior Design Awards 2008
Restoration of St. Paul's Church
TID Primary Selection
Category of Public Spaces
Taiwan Interior Design Awards 2008
2008 Restoration of
SKH Ming Hua Theological College
TID Primary Selection
Category of Public Spaces
Taiwan Interior Design Awards 2008
Youth S.P.O.T. at Verbena Heights
for HKFYG
Merit Award
HK Institute of Landscape Architects
Landscape Design Awards 2008
City Art Square @ Shatin
Outstanding Greater China
Design Awards 2008
City Art Square @ Shatin
Certificate of Excellence
Best Office Interior
Perspective Awards 2007
Barrie Ho Architecture Interiors Ltd
Silver Medal
Category of Institution
Asia Pacific Interior Design
Awards 2007
St. Paul's Church
Outstanding Greater China
Design Awards 2007
Generating New Youth in Asia
Honourable Mention
Category of Institution
Asia Pacific Interior Design
Awards 2006
Youth S.P.O.T. at Verbena Heights
for HKFYG
Outanding Greater China
Design Awards 2006
Zen House at Mission Hills
Gold Medal
Category of Institution
Asia Pacific Interior Design
Awards 2005
Youth S.P.O.T. Centre for HKFYG
The PDPA Prize
Category of Commercial
(Institution)
Perspective Design Recognition
Awards 2005
Spaces and Places -
Round Heavan, Square Earth
Honourable Mention
Category of Hospitality Space
(Hotel)
Perspective Design Recognition
Awards 2005
Urban Retrat -
Palm Island Goff Resort
Merit Awards
Category of Residence
HK Designers' Association
Awards 2005
Green Apartment
Merit Awards
Category of Exhibition
HK Designers' Association
Awards 2005
World Boutique 2003 for HK TDC
Honourable Mention
Category of Institution
Asia Pacitic Interior Design
Awards 2004
Image Centre for IVE Kwai Chung
Winner, Category of Institution
Asia Pacific Interior Design
Awards 2003
Hong Kong Design Centre
Winner, Category of Exhibition
Asia Pacific Interior Design
Awards 2003
World Boutique 2003 for HK TDC
Honourable Mention
Category of Institution
Asia Pacific Interior Design
Awards 2003
Fashion Centre for IVE Kwai Chung
2023
A&D Awards 2022Bronze AwardBest Residential – Single Home,Architecture Category
The Cube @Beachside, Sans Souci, Sydney NSW, Australia
A&D Awards 2022Bronze AwardBest Education, Architecture Category
Remodeling of Li Promenade@ Hong Kong Baptist University, Hong Kong
2022
Luxury Lifestyle Award 2022Nest Luxury Mixed Used Architecture
The Acceleration Block, Extension (Phase 2)of Qian Hai Creative Entrepreneur - Hub @ QianHai, Shenzhen, PRC
HKDA Global Design Awards 2021Excellence AwardRestaurant, Spatial Category
Leisure Depot@ Hong Kong Baptist University
HKDA Global Design Awards 2021Excellence AwardRestaurant, Spatial Category
Crit Room for Italian Cuisine@Sheung Wan, Hong Kong
HKDA Global Design Awards 2021Excellence AwardOffice, Spatial Category
Extension (Phase 2) of Qian Hai Creative Entrepreneur - Hub@ QianHai, Shenzhen, PRC
HKDA Global Design Awards 2021Excellence AwardOffice, Spatial Category
The Acceleration Block, Extension (Phase 2)of Qian Hai Creative Entrepreneur - Hub@ QianHai, Shenzhen, PRC
HKDA Global Design Awards 2021Excellence AwardOffice, Spatial Category
The Incubation Block, Extension (Phase 2)of Qian Hai Creative Entrepreneur - Hub@ QianHai, Shenzhen, PRC
2021
A&D Awards 2021Silver AwardFuture Development, Architecture Category
BHA Sydney, Office and Community Gallery@Sydney NSW, Australia
A&D Awards 2021Certificate of Excellence Best Education, Architecture Category
The Incubation Block, Extension (Phase 2)of Qian Hai Creative Entrepreneur - Hub @ QianHai, Shenzhen, PRC
THE SOURCE DESIGN AWARDS 2020Architecture Category
Integrated E-Sports Stadium@ Zhongxian, ChonqQing, PRC
2020
The Source Design Awards2020Architecture Category
Integrated E-Sports Stadium@ Zhongxian, ChonqQing, PRC
2019
France Place Marketing Forum 2019 AwardThe Great Project
Integrated E-Sports Stadium@ Zhongxian, ChonqQing, PRC
2019-2020 Asia Pacific Property AwardsHighly Commended AwardPublic Service Interior Category
Hong Kong Jockey ClubTelebet Centre @ Shatin, Hong Kong
2019-2020 Asia Pacific Property AwardsHighly Commended AwardPublic Service Interior Category
Hong Kong Federation of YouthYouth Centre @ Hung ShuiKiu, TuenMun, HK
2018
2018 A&D Trophy Award Certificate of ExcellentProfessional Best Institution, Interior Design
New Generation of Youth Centre@Hung Shui Kiu
2017
2017-18 Asia Pacific Property AwardsHighly Commended Award
Public Service Architecture CategoryConference Lodge@ Hong Kong University of Science and Technology
2017-18 Asia Pacific Property AwardsHighly Commended AwardRetail Architecture Category
Plaza 2000@ Causeway Bay
2017-18 Asia Pacific Property AwardsBest Public Service Architecture AwardPublic Service Architecture Category
Conference Lodge@ Hong Kong University of Science and Technology
2017-2018 HKIA Cross-Strait Architectural Design AwardsNominated AwardResidential Category
The Woods@ Clear Water Road, Sai Kung
2017-2018 HKIA Cross-Strait Architectural Design AwardsNominated AwardArchitecture for Social Innovation Category
Conference Lodge@ Hong Kong University of Science and Technology
2017-2018 HKIA Cross-Strait Architectural Design AwardsNominated AwardArchitecture for Social Innovation Category
Wholesale Conversion of Industrial Buildinginto Genesis@ Wong Chuk Hang, Island South
2017-2018 HKIA Cross-StraitArchitectural Design AwardsNominated AwardArchitecture for Social Innovation Category
Wan Chai Sports Federation@ Moreton Terrace, Causeway Bay
2017-2018 HKIA Cross-Strait Architectural Design AwardsNominated AwardArchitecture for Social Innovation Category
Qian Hai Creative Youth EntrepreneurshipDream Factory@ Qian Hai, Shenzhen, PRC
2017-2018 HKIA Cross-Strait Architectural Design AwardsNominated AwardArchitecture for Social Innovation Category
Hong Kong Federation of WomenT.S. Kwok Service Centre@ Lockhart Road, Wanchai
2017-2018 HKIA Cross-Strait Architectural Design AwardsNominated AwardArchitecture for Social Innovation Category
Skynet for Logo Square+ Courtyard Café@ Hong Kong Polytechnic University
2017-2018 HKIA Cross-Strait Architectural Design AwardsNominated Award, Architecture for Social Innovation Category
HKFYG Jockey Club M21@ Shek Pai Wan Estate
2017A&D Trophy AwardsCertificate of Excellent –Residential, Architecture (Professional)
The Woods@ Clear Water Road, Sai Kung
2016
2016 Perspective AwardsFinalist, Architecture Category
Wan Chai Sports Federation@ Moreton Terrace, Causeway Bay
2016 Perspective AwardsFinalist, Architecture Category
Plaza 2000@ Causeway Bay
2016 Perspective AwardsFinalist, Interior Design Category
HKJC Communication & Technology Centre Shatin Racecourse@ Shatin
2016 Perspective AwardsFinalist, Architecture Category
Conference Lodge @ Hong Kong University of Science and Technology
2016 Perspective AwardsFinalist, Architecture Category
Qian Hai Creative Youth Entrepreneurship Dream Factory@ Qian Hai, Shenzhen, PRC
2016 Perspective AwardsFinalist, Interior Design Category
Main Library@ Hong Kong Academy for Performing Arts
2016 Perspective AwardsFinalist, Interior Design Category
TATOOINE for Star Wars Collections @ Genesis, Wong Chuk Hang
2016 Perspective AwardsFinalist, Architecture Category
Wholesale Conversion of Industrial Building@ Wong Chuk Hang into GENESIS
2016 Perspective AwardsFinalist, Architecture Category
Hong Kong University of Science and Technology Skynet@ Hong Kong University of Science and Technology
2015
2015-16 Asia Pacific Property Awards
Highly Commended Award
Public Service Architecture Category
Wholesale Conversion of Industrial Building
into Genesis
@ Wong Chuk Hang, Island South
2015-16 Asia Pacific Property Awards
Highly Commended Award
Public Service Architecture Category
Qian Hai Creative Youth Entrepreneurship
Dream Factory
@ Qian Hai, Shenzhen, PRC
2015-2016 HKIA Cross-Strait
Architectural Design Awards
Nominated Award
Architecture for Social Innovation Category
Wan Chai Sports Federation
@ Moreton Terrace, Causeway Bay
2015-2016 HKIA Cross-Strait
Architectural Design Awards
Nominated Award
Architecture for Social Innovation Category
Transformation of an Abandoned School into
New Headquarters of HKCAAVQ and ERB
@ Siu Sai Wan
2015-2016 HKIA Cross-Strait
Architectural Design Awards
Nominated Award
Architecture for Social Innovation Category
Transformation of a Carpark
into
HKFYG Jockey Club M21
@ Shek Pai Wan Estate
2015-2016 HKIA Cross-Strait
Architectural Design Awards
Nominated Award
Architecture for Social Innovation Category
Hong Kong Federation of Women
T.S. Kwok Service Centre
@ Lockhart Road, Wanchai
2015-2016 HKIA Cross-Strait
Architectural Design Awards
Nominated Award
Architecture for Social Innovation Category
Skynet for Logo Square
+ Courtyard Café
@ Hong Kong Polytechnic University
2015-2016 HKIA Cross-Strait
Architectural Design Awards
Nominated Award
Unbuilt Project:
Architectural Design Scheme Category
S.K.H. St. Christopher's Home
Youth Hostel
@ Tai Po Road, Tai Po
2015 China’s Successful Design Award
in Architectural Design
Qian Hai Creative Youth Entrepreneurship
Dream Factory
@ Qian Hai, Shenzhen, PRC
2014
2014-15 Asia Pacific Property Awards
Highly Commended Award
Hotel Architecture Category
The Mercer, Boutique Hotel
@ Mercer Street, Hong Kong
2014 FuturArc Green Leadership Award
Merit – Institutional Architecture category
Transformation of an Abandoned Carpark into
HKFYG Jockey Club M21
@ Shek Pai Wan
Golden Pin Design Award 2014
Category of Interior Design
The White Cube @ Milan Design Week 2013
2014 Taiwan TID Awards
Category of Space Furniture
The White Cube @ Milano Design Week 2013
2013
HKDA Global Design Awards 2013
Certificate of Excellence – Spatial Category
The Mercer, Boutique Hotel
@ Mercer Street, Hong Kong
2013 Good Design Selection, Korea
Award of Selection
Transformation of an Abandoned Carpark into
HKFYG Jockey Club M21
@ Shek Pai Wan
2013 Perspective Awards
Certificate of Excellence
Green or Sustainable Build, Architecture
(Professional)
Transformation of an Abandoned School into
the Headquarter of
Hong Kong Council for Accreditation of
Academic And Vocational Qualifications
@ Siu Sai Wan
2013 Perspective Awards
Certificate of Excellence
Institutional/ Public Space, Interior (Professional)
Transformation of an Abandoned Carpark into
HKFYG Jockey Club M21
@ Shek Pai Wan
2013 China's Successful Design Award
in Architectural Design
Shanghai, PRC
iCube
@ Zhuhai, PRC
2013 Outstanding Greater China Design Award
iCube
@ Zhuhai, PRC
2013 Outstanding Greater China Design Award
Contemporary Food Agora
@ HK University of Science and Technology
2013-14 Asia Pacific Property Awards
Highly Commended Award, Public Service Architecture Category
Transformation of an Abandoned Carpark into
HKFYG Jockey Club M21
@ Shek Pai Wan
2013 HKIA Cross-Strait Architectural Design Awards
Nominated Award, Hotel Category
The Mercer, Boutique Hotel
@ Mercer Street, Hong Kong
2012
2012 Perspective Awards
Certificate of Excellence
Green or Sustainable Build, Architecture
(Professional)
Utilisation of
Leftover Space Underneath Flyover for
HKFW T.S. Kwok Service Centre
@ Lockhart Road, Wanchai
2012 China's Successful Design Award
in Architectural Design
Shanghai, PRC
Transformation of an existing Carpark into
HKFYG Jockey Club M21
@ Shek Pai Wan
"2012 China's Successful Design Award
in Architectural Design
Shanghai, PRC
Transformation of an Abandoned Cinema into
HEYA Lifestyle Show Suite for
Contemporary Living
@ Cheung Sha Wan
"2012 China's Successful Design Award
in Architectural Design
Shanghai, PRC
Transformation of
An Abandoned Primary School into
Hong Kong Council for Accreditation of
Academic And Vocational Qualifications
@ Siu Sai Wan
2012 Outstanding Greater China Design Award
The Skynet
@ Logo Square + Courtyard Café
The Hong Kong Polytechnic University
2012 Outstanding Greater China Design Award
Transformation of an Abandoned Carpark into
Creative New Media Centre for Youth
@ Shek Pai Wan
2012 FuturArc FuturArc Green Leadership Award
Merit - Interior Architecture Category
Transformation of Existing Carpark into
The Hong Kong Jockey Club Telebet Centre
@ Tin Shui Wai"
2011
Hong Kong Best,
Spatial Category
2011 Hong Kong
Designer's Association Awards
The Skynet
@ Logo Square + Courtyard Cafe,
The HK Polytechnic University
Certificate of Excellence,
Spatial Catagory
2011 Hong Kong
Designer's Association Awards
The Skynet
@ Logo Square + Courtyard Cafe,
The HK Polytechnic University
2011 China's Most Successful
Designs Award
in Architectural Design,
Shanghai, PRC
CBI China
The Skynet
@ Logo Square + Courtyard Cafe,
The HK Polytechnic University
2011 China's Most Successful
Designs Award
in Architectural Design,
Shanghai, PRC
CBI China
Hong Kong Federation of Women
T.S. Kwok Service Centre
@ Lockhart Road, Hong Kong
2011 China's Most Successful
Designs Award
in Architectural Design,
Shanghai, PRC
CBI China
The Mercer, Boutique Hotel
@ Mercer Street, Hong Kong
2011 China's Most Successful
Designs Award
in Architectural Design,
Shanghai, PRC
CBI China
Zebrano, Boutique Apartment
@ Kowloon City, Kowloon
Outstanding Greater China
Design Awards 2011
Hong Kong Federation of Women
T.S. Kwok Service Centre
@ Lockhart Road, Hong Kong
2010
Bronze,
Architecture (Renovation) Category
USA International Design
Awards 2010
Sir Run Run Shaw Hall
@ The Chinese University of HK
Bronze,
Architecture (Institutional) Category
USA International Design
Awards 2010
HKFYG Youth S.P.O.T.
@ Hang Fa Chuen
Silver,
Interior Design (Institutional) Category
USA International Design
Awards 2010
FMC Youth Centre @ Tuen Mun
Bronze,
Architecture (Institutional) Category
USA International Design
Awards 2010
The Hong Kong Jockey Club
Cadenza Senior Hub @ Tai Po
Certificate of Excellence
Heritage, Architecture (Professional)
Perspective Awards 2010
Restoration of
SKH Ming Hua Theological College
Certificate of Excellence
Landscaping, Architecture (Professional)
Perspective Awards 2010
ity Art Square @ Shatin
Certificate of Excellence
Green or Sustainable Build,
Interior Design (Professional)
Perspective Awards 2010
HKFYG Youth S.P.O.T.
@ Hang Fa Chuen
2010 China's Most Successful
Designs Award
CBI China
HKFYG Youth S.P.O.T
@ Hang Fa Chuen
2010 China's Most Successful
Designs Award
CBI China
Utilization of Corridors for
Youth Art Space for
Free Methodist Church
@ Tuen Mun
Outstanding Greater China
Design Awards 2010
Home Square @ Shatin
Merit
Special Awards,
Community Institutional
Facilities Category
Quality Building Awards 2010
City Art Square @ Shatin
Certificate of Finalist
Special Awards,
Community Institutional
Facilites Category
Quality Building Awards 2010
The Hong Kong Jockey Club
Telebet Centre @ Tin Shui Wai
2009
2009 China's Most Successful
Designs Award
J Hotel @ Sheung Wan
Outstanding Greater China
Design Awards 2009
The Hong Kong Jockey Club
Telebet Centre @ Tin Shui Wai
Honorable Mention
Category of Institutional Space
Asia Pacific Interior Design
Awards 2009
Sir Run Run Shaw Hall
@ The Chinese University of HK
TID Gold Award
Category of Space Furniture
Taiwan Interior Design Awards 2009
The Red Box
2008
Winner
Leisure Built Category
Dubai Cityscape Architectural
Awards 2008
City Art Square @ Shatin
Honorable Mention
Architecture (Landscape) Category
USA International Design Awards 2008
City Art Square @ Shatin
2nd Prize
Architecture (Landscape) Category
USA International Design
Awards 2008
Communal Park for Shatin IVE
2nd Prize
Interior Design (institutional) Category
USA International Design
Awards 2008
Youth S.P.O.T. at Verbena Heights
for HKFYG
2nd Prize
Interior Design (institutional) Category
USA International Design
Awards 2008
Youth S.P.O.T. Centre for HKFYG
Winner
Category of Interior Institutional Space
Perpective Awards 2008
Hong Kong Biennale of
Architecture & Urbanism
Gold Medal
Category of Residential
Asia Pacific Interior Design
Awards 2008
Architects' Apartment @ Hatton Road
Winner 25
2008 China's Most Successful
Designs Award
Fortune China Magazine
City Art Square @ Shatin
TID Gold Award
Category of Exhibition Spaces
Taiwan Interior Design Awards 2008
Hong Kong Biennale of
Architecture & Urbanism
TID Award
Category of Public Spaces
Taiwan Interior Design Awards 2008
City Art Square @ Shatin
TID Award
Category of EPublic Spaces
Taiwan Interior Design Awards 2008
Communal Park for Shatin IVE
TID Primary Selection
Category of Residential Spaces
Taiwan Interior Design Awards 2008
Architects' Apartment @ Hatton Road
TID Primary Selection
Category of Public Spaces
Taiwan Interior Design Awards 2008
Restoration of St. Paul's Church
TID Primary Selection
Category of Public Spaces
Taiwan Interior Design Awards 2008
2008 Restoration of
SKH Ming Hua Theological College
TID Primary Selection
Category of Public Spaces
Taiwan Interior Design Awards 2008
Youth S.P.O.T. at Verbena Heights
for HKFYG
Merit Award
HK Institute of Landscape Architects
Landscape Design Awards 2008
City Art Square @ Shatin
Outstanding Greater China
Design Awards 2008
City Art Square @ Shatin
2007
Certificate of Excellence
Best Office Interior
Perspective Awards 2007
Barrie Ho Architecture Interiors Ltd
Silver Medal
Category of Institution
Asia Pacific Interior Design
Awards 2007
St. Paul's Church
Outstanding Greater China
Design Awards 2007
Generating New Youth in Asia
2006
Honourable Mention
Category of Institution
Asia Pacific Interior Design
Awards 2006
Youth S.P.O.T. at Verbena Heights
for HKFYG
Outanding Greater China
Design Awards 2006
Zen House at Mission Hills
2005
Gold Medal
Category of Institution
Asia Pacific Interior Design
Awards 2005
Youth S.P.O.T. Centre for HKFYG
The PDPA Prize
Category of Commercial
(Institution)
Perspective Design Recognition
Awards 2005
Spaces and Places -
Round Heavan, Square Earth
Honourable Mention
Category of Hospitality Space
(Hotel)
Perspective Design Recognition
Awards 2005
Urban Retrat -
Palm Island Goff Resort
Merit Awards
Category of Residence
HK Designers' Association
Awards 2005
Green Apartment
Merit Awards
Category of Exhibition
HK Designers' Association
Awards 2005
World Boutique 2003 for HK TDC
2004
Honourable Mention
Category of Institution
Asia Pacitic Interior Design
Awards 2004
Image Centre for IVE Kwai Chung
2003
Winner, Category of Institution
Asia Pacific Interior Design
Awards 2003
Hong Kong Design Centre
Winner, Category of Exhibition
Asia Pacific Interior Design
Awards 2003
World Boutique 2003 for HK TDC
Honourable Mention
Category of Institution
Asia Pacific Interior Design
Awards 2003
Fashion Centre for IVE Kwai Chung
personal
personal
collective review
Best Luxury Award StudioLuxury Lifestyle Award 2022
to BARRIE HO Architecture Interiors Ltd.
Architecture Design Firm of the yearFinance Monthly Global Award 2022
to BARRIE HO Architecture Interiors Ltd.
Outstanding Contribution AwardA&D Awards 2021
to BARRIE HO Architecture Interiors Ltd.
Most Valuable Companies in Hong Kong 2021EMost Innovative Designer Award
to BARRIE HO Architecture Interiors Ltd.
Achievement Award 2020Achievements Forum@ Royal Institue of Director, London,United Kingdom
To Mr. Barrie Ho
Best Architectural PracticesEuropean Award for Best Practices 2020by The European Society for Quality Research@ Le Plaza Hotel, Brussels, Belgium
To BARRIE HO Architecture Interiors Ltd.
Fellowsship Member
Royal Institute of British ArchitectsTo Mr. Barrie Ho
Global Brand Award 2018
Most Innovative Architects Firmto BARRIE HO Architecture Interiors Ltd.
Mediazone’s Most Valuable Companiesin Hong Kong
Special Award- Platinum Brand Award 2019to BARRIE HO Architecture Interiors Ltd.
CORPHUB Most Outstanding EnterpriseAwards 2018
Most Reputed Architecture & Interior Design of the Yearto BARRIE HO Architecture Interiors Ltd.
Mediazone’s Most Valuable Companies in Hong Kong
Special Award- Platinum Brand Award 2017to BARRIE HO Architecture Interiors Ltd.
2014
Hong Kong Communication Art Centre
Outstanding Achievement Award
To Mr. Barrie Ho
2013
China Architectural Decoration Association
International Design & Art Achievement Award
To Mr. Barrie Ho
The Order of the
Medal of Honour 2011
The Government of HKSAR
to Mr. Barrie Ho
Taiwan Top Ten Designer
Award 2011
to Mr. Barrie Ho
Hantec Wealth Creation Award 2011
Hantec Group to Mr. Barrie Ho
Outstanding Innovative Entrepareneur
Award 2009
China Innovative Enterprise Forum
to Mr. Barrie Ho
Honorary Fellow 2008
Vocational Training Council
to Mr. Barrie Ho
40 Under 40
Perspective Limited
to Mr. Barrie Ho
Outstanding PolyU Alumni
Award 2007
H.K. Polytechnice University
to Mr. Barrie Ho
Ten Outstanding Young Persons
Awards 2005
Junior Chamber Internation H.K.
to Mr. Barrie Ho
Ten Outstanding Designers
Awards 2005
H.K. Communication Art Centre
to Mr. Barrie Ho
2022
Best Luxury Award StudioLuxury Lifestyle Award 2022
to BARRIE HO Architecture Interiors Ltd.
Architecture Design Firm of the yearFinance Monthly Global Award 2022
to BARRIE HO Architecture Interiors Ltd.
2021
Outstanding Contribution AwardA&D Awards 2021
to BARRIE HO Architecture Interiors Ltd.
Most Valuable Companies in Hong Kong 2021EMost Innovative Designer Award
to BARRIE HO Architecture Interiors Ltd.
2020
Achievement Award 2020Achievements Forum@ Royal Institue of Director, London,United Kingdom
To Mr. Barrie Ho
Best Architectural PracticesEuropean Award for Best Practices 2020by The European Society for Quality Research@ Le Plaza Hotel, Brussels, Belgium
To BARRIE HO Architecture Interiors Ltd.
2019
Fellowsship Member
Royal Institute of British ArchitectsTo Mr. Barrie Ho
2018
Global Brand Award 2018
Most Innovative Architects Firmto BARRIE HO Architecture Interiors Ltd.
Mediazone’s Most Valuable Companiesin Hong Kong
Special Award- Platinum Brand Award 2019to BARRIE HO Architecture Interiors Ltd.
CORPHUB Most Outstanding EnterpriseAwards 2018
Most Reputed Architecture & Interior Design of the Yearto BARRIE HO Architecture Interiors Ltd.
2017
Mediazone’s Most Valuable Companies in Hong Kong
Special Award- Platinum Brand Award 2017to BARRIE HO Architecture Interiors Ltd.
2015
2014
2014
Hong Kong Communication Art Centre
Outstanding Achievement Award
To Mr. Barrie Ho
2013
2013
China Architectural Decoration Association
International Design & Art Achievement Award
To Mr. Barrie Ho
2011
The Order of the
Medal of Honour 2011
The Government of HKSAR
to Mr. Barrie Ho
Taiwan Top Ten Designer
Award 2011
to Mr. Barrie Ho
2010
Hantec Wealth Creation Award 2011
Hantec Group to Mr. Barrie Ho
2009
Outstanding Innovative Entrepareneur
Award 2009
China Innovative Enterprise Forum
to Mr. Barrie Ho
2008
Honorary Fellow 2008
Vocational Training Council
to Mr. Barrie Ho
2007
40 Under 40
Perspective Limited
to Mr. Barrie Ho
Outstanding PolyU Alumni
Award 2007
H.K. Polytechnice University
to Mr. Barrie Ho
2005
Ten Outstanding Young Persons
Awards 2005
Junior Chamber Internation H.K.
to Mr. Barrie Ho
Ten Outstanding Designers
Awards 2005
H.K. Communication Art Centre
to Mr. Barrie Ho
furniture / crossover
furniture / crossover
collective review
Platinum Medal
ADEX Award for
Design Excellence 2008
Full Moon Chair
Platinum Medal
ADEX Award for
Design Excellence 2008
Quarter Moon Chair
Gold Medal
ADEX Award for
Design Excellence 2008
Zen Cabinet
Gold Medal
ADEX Award for
Design Excellence 2008
Zen Collection
2007's Most Successful
Design Award
Fortune China Magazine
Zen Collection
Gold Medal
Category of Furniture Design
HK Designers' Association
Awards 2007
Zen Collection
Silver Medal
ADEX Award for
Design Excellence 2007
Ming Collection
Gold Medal
Category of Jewelry Design
HK Designers' Association
Awards 2005
Jade Collection
2008
Platinum Medal
ADEX Award for
Design Excellence 2008
Full Moon Chair
Platinum Medal
ADEX Award for
Design Excellence 2008
Quarter Moon Chair
Gold Medal
ADEX Award for
Design Excellence 2008
Zen Cabinet
Gold Medal
ADEX Award for
Design Excellence 2008
Zen Collection
2007
2007's Most Successful
Design Award
Fortune China Magazine
Zen Collection
Gold Medal
Category of Furniture Design
HK Designers' Association
Awards 2007
Zen Collection
Silver Medal
ADEX Award for
Design Excellence 2007
Ming Collection
2005
Gold Medal
Category of Jewelry Design
HK Designers' Association
Awards 2005
Jade Collection
News
architecture
recently completed projects
ChongQing China-US Collaborative
Inno-Accelerator cum
Academy for Xiantao Big Data Valley
@ChongQing, PRC
(Part 1)
ChongQing China-US Collaborative
Inno-Accelerator cum
Academy for Xiantao Big Data Valley
@ChongQing, PRC
(Part 2)
ChongQing China-US Collaborative
Inno-Accelerator cum
Academy for Xiantao Big Data Valley
@ChongQing, PRC
(Part 3)
Qian Hai Creative Youth Entrepreneurship
Dream Factory
@ Qian Hai, Shenzhen, PRC (Part 1)
Qian Hai Creative Youth EntrepreneurshipDream Factory@ Qian Hai, Shenzhen, PRC (Part 2)
Qian Hai Creative Youth EntrepreneurshipDream Factory@ Qian Hai, Shenzhen, PRC (Part 3)
Conference Lodge@ HK University of Science & Technology(Part 1)
Conference Lodge@ HK University of Science & Technology(Part 2)
Wholesale Conversion of Industrial Buildinginto Genesis@ Wong Chuk Hang, Island South(Part 1)
Wholesale Conversion of Industrial Buildinginto Genesis@ Wong Chuk Hang, Island South(Part 2)
Major Alteration & Addition Works for
Plaza 2000
@ Russell Street, Causeway Bay
Wan Chai Sports Federation
@ Moreton Terrace, Causeway Bay
Major Alteration & Addition Works for
New Student Life Centre
@ HK University of Science & Technology
Major Alteration & Addition Works for
Library of
The HK Academy for Performing Arts
@ Wanchai (Section 1)
The Woods
@ Pak Shek Wo San Tsuen Road, Sai Kung
upcoming new projects
Integrated E-Sports Stadium +
Incubation + Training + Hotel Development
@ Zhongxian, Chongqing, PRC
(Updated site photos)
Integrated E-Sports Stadium +
Incubation + Training + Hotel Development
@ Zhongxian, Chongqing, PRC (Part 1)
Integrated E-Sports Stadium +
Incubation + Training + Hotel Development
@ Zhongxian, Chongqing, PRC (Part 2- Updated site photos)
Integrated E-Sports Stadium +
Incubation + Training + Hotel Development
@ Zhongxian, Chongqing, PRC (Part 3)
Proposed Columbarium & Conservation &
Restoration of Pun Uk
@ Au Tau, Yuen Long
New Headquarter of
Society for the Prevention of
Cruelty to Animals (SPCA)
@ Tsing Yi
New Iconic Skynet at South Campus
@ HK University of Science & Technology
Masterplanning of WaterSports Centre
@ HK University of Science & Technology
S.K.H. St. Christopher's Home
Youth Hostel
@Tai Po Road, Tai Po
institution & community facility
research study
conservation & restoration
shopping mall
corporate
hotel & serviced apartment
master planning
residence
About Us - Hiden
founder & director
Barrie Ho MH
directors
associates
public relations
head office
design philosophy
international collaboration
corporate events
exhibitions
publications
contact
News
2025
Jun
May
Apr
Mar
Feb
Jan
2024
Jan
Feb
Mar
Apr
May
Jun
Jul
Aug
Sep
Oct
Nov
Dec
2023
Jan
Feb
Mar
Apr
May
Jun
Jul
Aug
Sep
Oct
Nov
Dec
2022
Jan
Feb
Mar
Apr
May
May (Sneak Peek)
Jun
Jul
Aug
Sep
Oct
Nov
Dec
2021
Jan
Feb
Mar
Apr
May
Jun
Jul
Aug
Sep
Oct
Nov
Dec
2020
Jan
Feb
Mar
Apr
May
Jun
Jul
Aug
Sep
Oct
Nov
Dec
2019
Jan
Feb
Mar
Apr
May
Jun
Jul
Aug
Sep
Oct
Nov
Dec
2018
Jan
Feb
Mar
Apr
May
Jun
Jul
Aug
Sep
Oct
Nov
Dec
2017
Jan
Feb
Mar
Apr
May
Jun
Jul
Aug
Sep
Oct
Nov
Dec
2016
Jan
Feb
Mar
Apr
May
Jun
Jul
Aug
Sep
Oct
Nov
Dec
2015
Jan
Feb
Mar
Apr
May
Jun
Jul
Aug
Sep
Oct
Nov
Dec
2014
Jan
Feb
Mar
Apr
May
Jun
Jul
Aug
Sep
Oct
Nov
Dec
2013
Jan
Feb
Mar
Apr
May
Jun
Jul
Aug
Sep
Oct
Nov
Dec
2012
Jan
Feb
Mar
Apr
May
Jun
Jul
Aug
Sep
Oct
Nov
Dec
2011
Jan
Feb
Mar
Apr
May
Jun
Jul
Aug
Sep
Oct
Nov
Dec
2010
Jan
Feb
Mar
Apr
May
Jun
Jul
Aug
Sep
Oct
Nov
Dec
2009
Jan
Feb
Mar
Apr
May
Jun
Jul
Aug
Sep
Oct
Nov
Dec
2008
Jan
Feb
Mar
Apr
May
Jun
Jul
Aug
Sep
Oct
Nov
Dec
2007
Jan
Feb
Mar
Apr
May
Jun
Jul
Aug
Sep
Oct
Nov
Dec
2006
Jan
Feb
Mar
Apr
May
Jun
Jul
Aug
Sep
Oct
Nov
Dec
Skip navigation
architecture
recently completed projects
The Accelerator Block,
Extension (Phase 2) of Qianhai Creative Entrepreneur-Hub
@ QianHai, Shenzhen, PRC
(Part 1)
The Incubation Block,
Extension (Phase 2) of QianHai Creative Entrepreneur-Hub
@ QianHai, Shenzhen, PRC
(Part 2)
Extension (Phase 2) of QianHai Creative Entrepreneur-Hub
@ QianHai, Shenzhen, PRC
(Part 3)
ChongQing China-US Collaborative
Inno-Accelerator cum
Academy for Xiantao Big Data Valley
@ChongQing, PRC
(Part 1)
ChongQing China-US Collaborative
Inno-Accelerator cum
Academy for Xiantao Big Data Valley
@ChongQing, PRC
(Part 2)
Qian Hai Creative Youth Entrepreneurship
Dream Factory
@ Qian Hai, Shenzhen, PRC (Part 1)
Qian Hai Creative Youth EntrepreneurshipDream Factory@ Qian Hai, Shenzhen, PRC (Part 2)
Qian Hai Creative Youth EntrepreneurshipDream Factory@ Qian Hai, Shenzhen, PRC (Part 3)
Integrated E-Sports Stadium +
Incubation + Training + Hotel Development
@ Zhongxian, Chongqing, PRC (Part 1)
Integrated E-Sports Stadium +
Incubation + Training + Hotel Development
@ Zhongxian, Chongqing, PRC (Part 2)
Conference Lodge@ HK University of Science & Technology
Wholesale Conversion of Industrial Buildinginto Genesis@ Wong Chuk Hang, Island South
Boat House
@ HK University of Science & Technology
F&B Concourse
@ HK University of Science & Technology
ATL Logistics Centre
@ Kwai Chung, Hong Kong
Metroplaza
@ Kwai Fong, Hong Kong
Wind Tunnel Codes for Wong Check She Research Centre
@ HK University of Science & Technology
Remodeling of Wai Hang Sports Centre
@ Hong Kong Baptist University
Grandstand, Joint Sport Centre
@ Hong Kong Baptist University
The Woods
@ Clear Waterbay Road, Sai Kung
New Iconic Skynet at South Campus
@ HK University of Science & Technology
Major Alteration & Addition Works for
Plaza 2000
@ Russell Street, Causeway Bay
Wan Chai Sports Federation
@ Moreton Terrace, Causeway Bay
Major Alteration & Addition Works for
New Student Life Centre
@ HK University of Science & Technology
Major Alteration & Addition Works for
Library of
The HK Academy for Performing Arts
@ Wanchai (Section 1)
upcoming new projects
Qian Wan Data Centre
@ QianHai
3 Cubes@ 73 Ellery Parade, Seaforth,Sydney NSW, Australia(Part 1)
3 Cubes@ 73 Ellery Parade, Seaforth,Sydney NSW, Australia(Part 2)
3 Cubes@ 73 Ellery Parade, Seaforth,Sydney NSW, Australia(Part 3)
3 Cubes@ 73 Ellery Parade, Seaforth,Sydney NSW, Australia(Part 4)
BHA Sydney + Community Gallery@ 25 Weston Street, Dulwich Hill,Sydney NSW, Australia
Remodeling of Li Promenade on Shaw Campus@ Hong Kong Baptist University
Black & White Tubes Experiments,
Propsed Residential Development
@ Sham Tseng
Major Alteration & Additional Works
of Sear Rogers International School
@ Tsuen Wan
Integrated Community Development
(Elderly + Youth) Yan Oi Tong
@ Tuen Mun
Proposed Columbarium & Conservation &
Restoration of Pun Uk
@ Au Tau, Yuen Long
New Headquarter of
Society for the Prevention of
Cruelty to Animals (SPCA)
@ Tsing Yi
S.K.H. St. Christopher's Home
Youth Hostel
@Tai Po Road, Tai Po
institution & community facility
Hong Kong Federation of Women
T.S. Kwok Service Centre
@ Lockhart Road, Wanchai
Skynet for Logo Square
+ Courtyard Cafe
@ Hong Kong Polytechnic University
Transformation of an abandoned School into
Headquarter of HKCAAVQ
@ Siu Sai Wan
Transformation of an abandoned School into
Headquarter of Employees' Retaining Board
@ Chai Wan
Silver 100 Innovative Exhibition Centre
@ Nanhai, PRC
Museum for Contemporary Living
@ Huizhou PRC
Island Golf Club
@ Tseung Kwan O
City Art Square
@ Shatin
Communal Park for IVE Shatin
@ Shatin
Hong Kong Federation of Youth Groups
Organic Farm
@ Yuen Long
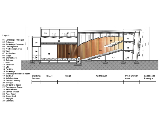
The Proposed Grand Auditorium
@ HK University of Science & Technology
The Tilting Tubes [2.86° pavilion]
for Western Kowloon Cultural District
@ Western Kowloon
Proposed Chinese Rhenish Church
@ Yuen Long
Proposed Columbarium
@ Lantau North
Proposed High-rise Columbarium
@ Tsuen Wan
Proposed Grand Columbarium for HKSAR
@ Lantau Island
Conceptual Design for Wu Yee Sun College
@ The Chinese University of Hong Kong
New Teaching Block
@ St. Stephen's College, Stanley
Contemporary Courtyard House
@ Nanhai, PRC
Student Dormitory
@ St. Stephen's College, Stanley
research study
A Research Study
on Accommodation Requirements
for Kindergartens in Hong Kong
for Education Bureau,
Hong Kong Special Administrative Region
(BHA in collaboration with CPW, HKU)
conservation & restoration
Urban Cocoon (Stage 1) for
Central Oasis, Central Market
@ Central
Urban Cocoon (Stage 2) for
Central Oasis, Central Market
@ Central
(in collaboration with OMA)
Transformation of abandoned Factories into
Creative Socio-Cultural Centre
@ Shunde, PRC
Transformation of 2 existing Bungalons
Into Visitors' Centre + Museum for
St. Stephen's College
@Stanley
(AMO Grade I Historical Building)
S.K.H. Ming Hua Theological College
@ Glenealy, Central
(AMO Grade I Historical Building)
St. Paul's Church
@ Glenealy, Central
(AMO Grade I Historical Building)
Hong Kong Design Centre
@ 28 Kennedy Road, Central
(AMO Grade I Historical Building)
Revitalisation of Lai Chi Kok Hospital
@ Lai Chi Kok
(AMO Grade III Historical Building)
shopping mall
iCube
@ Zhuhai, PRC
iCube Mall Annex
@ Zhuhai, PRC
Home Square
@ Shatin
Cantonyama
@ Canton Road, Tsim Sha Tsui
Island Resort Mall
@ Island East
Katherine House
@ Tsim Sha Tsui
Chow Tai Fook Flagship Store
@ Guangzhou, PRC
corporate
Alteration & Addition Works for
Emperor Group Centre
@ Wanchai
Pylon Tower
@ Tsuen Wan
Major Alteration & Addition Works for
Plaza 2000
@ Russell Street, Causeway Bay
hotel & serviced apartment
The Mercer, Boutique Hotel
@ Mercer Street, Sheung Wan
Zebrano, Boutique Apartment
@ Lion Rock Road, Kowloon City
Urban Retreat Palm Island Golf Resort
@ Huizhou, PRC
master planning
Kunming World Trade Centre
@ Kunming, PRC
Mixed-Use Development & Masterplanning
@ Zhaoqing City, PRC
Master Layout Plan for
Composite Residential Development
@ Dongguan, PRC
Master Layout Plan for Aqua-Habitat
@ Shenzhen PRC
residence
Residential Redevelopment
@ Moorsom Drive Jardine's Lookout
Residential Development
@Silver Terrace Road, Clear Water Bay
Private Residence
@ No. 10 Calcada das Chacaras, Macau
Private Residence
@ Fei Ngo Shan
High-Rise Residential Development
@ Dongguan, PRC
Resort Residence, Palm Island Golf Resort
@ Huizhou, PRC
The Proposed Grand Auditorium @ HKUST